logologologologo
  • Beranda
  • Tentang Kami
  • Jadwal Lelang
    • Jadwal Lelang Eksekusi
    • Jadwal Lelang Sukarela
    • Lelang Piutang / Cessie
  • Informasi Lelang
    • Persyaratan Ikut Lelang
    • FAQ
    • Galeri
  • Peraturan
  • Kontak
Buy now
✕
            No results See all results

            BLH E053

            • Home
            • Jawa Timur
            • BLH E053
            BLH E052
            10 October 2024
            BLH E054
            10 October 2024
            Categories
            • Jawa Timur
            • Lelang Eksekusi
            • Malang
            Tags
            • Rp 607.000.000


            1

            2

            54

            00165 JOHAN WALUYO CANDI III Feb 2023_page-0028

            Nilai Limit

            Cool Number
            Rp.
            0

            E-Flayer


            MINAT

            Share

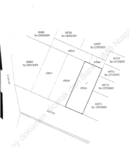
            Rumah di Kelurahan Karangbesuki, Kecamatan Sukun, Kota Malang, Provinsi Jawa Timur,setempat dikenal Jalan Simpang Candi III No. 1, Kelurahan Karangbesuki, Kecamatan Sukun, Kota Malang, Provinsi Jawa Timur.luas tanah 95 m2 ,SHM No. 4046/Karangbesuki, atas nama JOHAN WALUYO

            DESKRIPSI PELAKSANAAN LELANG

            Jadwal Lelang On Progress
            Waktu Lelang On Progress
            Cara Penawaran Open bidding
            Setoran Jaminan Lelang Rp. 155.000.000
            Batas Akhir Penawaran On Progress (sesuai waktu server)
            Tempat Lelang

            KPKNL MALANG

            Informasi
            Pengumuman Lelang
            Penjual/Penyelenggara
            Disclaimer
            Informasi

            Dokumen :

            SHM No. 4046/Karangbesuki

            luas 95 m2

            Bentuk Tanah 

            Pengumuman Lelang

            Pengumuman Lelang  Klik disini

             

            Penjual/Penyelenggara

            Penjual :
            PT CIMB Niaga
            Penyelenggara : 

            KPKNL MALANG

            Pra Lelang :
            PT Balai Lelang Harmoni
            Jl. Gading Batavia Blok LC 11/2
            Kelapa Gading-Jakarta Utara
            HP. 087877368585

            Disclaimer

            DISCLAIMER :

            1. Data dan informasi dapat berubah sewaktu-waktu.
            2. Barang dijual secara apa adanya (as is) sesuai kondisi pada saat pelaksanaan lelang. Kami tidak memberikan
              jaminan atau garansi terhadap keakuratan, kehandalan dan/atau kelengkapan informasi yang berkaitan dengan
              properti.
            3. Peserta lelang dianggap dengan sungguh-sungguh sudah mengetahui segala bentuk kekurangan/kerusakan,
              bertanggung atas segala risiko yang mungkin timbul di kemudian hari baik dari aspek fisik maupun juridis/legal,
              termasuk bersedia memenuhi segala bentuk tunggakan/biaya-biaya yang harus dibayar sesuai ketentuan yang
              berlaku, apabila ditunjuk sebagai pembeli/pemenang lelang.
            4. Karena satu dan lain hal, lelang dapat dibatalkan sesuai dengan ketentuan dan peserta lelang tidak berhak
              menuntut ganti rugi atau tuntutan dalam bentuk apapun kepada Penjual ataupun Penyelenggara maupun
              kepada PT. Balai Lelang Harmoni.
            5. Lokasi yang ditunjukan dalam google map atau peta hanya merupakan alat bantu perkiraan lokasi agunan.
            6. Harga limit lelang yang tercantum hanya berlaku pada tanggal pelaksanaan lelang tersebut di atas.
            7. Apabila terdapat perbedaan informasi yang terdapat dalam website dengan pengumuman lelang di media
              massa, maka yang digunakan adalah pengumuman lelang dalam media massa yang berlaku untuk pelaksanaan
              lelang tersebut.
            8. Beberapa informasi diperoleh berdasarkan data yang diterima oleh kami dan kami tidak bertanggung jawab
              terhadap keabsahan, keaslian dan kebeneran data dan informasi tersebut apabila terdapat perbedaan antara
              data dan informasi yang tersedia dibandingkan dengan keadaan yang sebenarnya. Dengan demikian, tidak ada
              jaminan, pernyataan, atau usaha, baik tersurat maupun tersirat, terhadap informasi yang disampaikan sehingga
              wajib dipertanggungjawabkan oleh kami untuk keakuratan setiap bagian, atau informasi lebih lanjut yang
              diberikan oleh dan / atau atas nama kami, baik secara lisan atau tertulis
            Share
            0
            Sofyan
            Sofyan

            Related posts

            10 April 2026

            BLH_N160


            Read more
            25 March 2026

            BLH_C158


            Read more
            25 March 2026

            BLH_C157


            Read more

            Leave a Reply Cancel reply

            Your email address will not be published. Required fields are marked *

            Find us here

            Contact with us

            Nullam viverra consectetuer quisque cursus et, porttitor risus.


            +61 (0) 3 8376 6284

            noreply@envato.com

            Localization

            Envato
            Level 13, 2 Elizabeth
            Victoria 3000
            Australia

            © 2026 Betheme by Muffin group | All Rights Reserved | Powered by WordPress
              Buy now